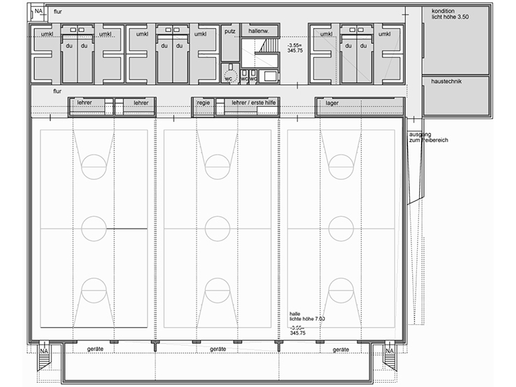
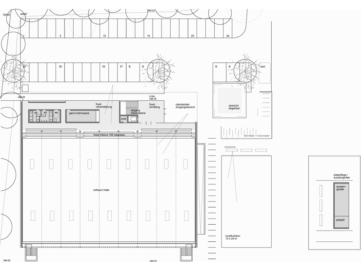
Fürther Straße, Schwabach Bauvorhaben: Neubau Turnhalle Johannes-Kern-Schule Bauherr: Stadt Schwabach Ausschreibung: 2010